str. Bisericii, Durlesti, Chisinau Vânzare

Durlesti

113 000€

75 m2

  • 3
  • 1
  • 75 m2
  • 1/5
Descriere

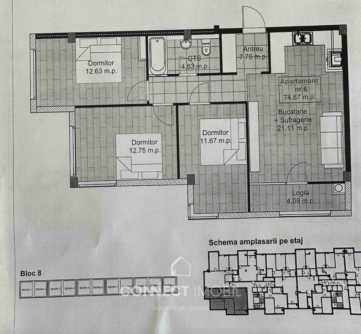
Spre vanzare apartament în sect. Durlesti, str. Bisericii.

Apartament amplasat la etajul 1 din 5 pe o suprafață utilă de 75 mp.

Compartimentat în 3 camere, living, bucătărie, grup sanitar, balcon, antreu.

Dispune de:

-Încălzire autonomă;

-Încălzire prin pardoseală;

-Geamuri termopan;

-Geamuri panoramice;

-Ușă blindată;

În nemijlocită apropiere: grădinițe, supermarket, farmacie, cafenea, etc.

Acces facil la transport public în orice direcție a orașului.

Compania CONNECT IMOBIL vă ajută în procesul de vînzare-cumpărare a unui imobil, teren sa

spațiu comercial, beneficiind de consultanță juridică în domeniul imobiliar și accesarea unui credit

ipotecar.

TOATE OFERTELE DISPONIBILE LE GĂSIȚI AICI: https://connectimobil.md/

Locație
logo maib