str.Nicolae Dimo ,Durlesti,Chisinau Продажа

Дурлешты

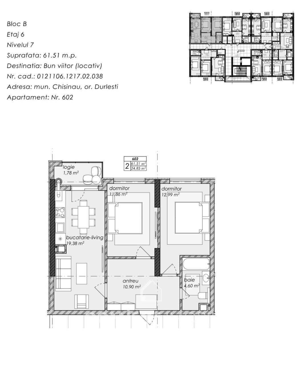
61 500€

61 м2

  • 2
  • 1
  • 61 м2
  • 6/11
Дополнительно
  • Автономное отопление
  • Стеклопакет
  • Бронированная дверь
  • Лифт
  • Детская площадка
Описание

Spre vânzare apartament cu doua camere și living, situat în sectorul Durlești, str. Nicolae Dimo.

Imobilul este situat la etajul 6 din 12, cu o suprafața de 61,51 m2.

Pret 1100 euro/m2

Dezvoltator MRK Invest.

Facilitati:

* Variantă albă;

* Parcare subterană;

* Geamuri termopane;

* Incălzire autonomă;

* Teren de joaca;

Darea in exploatare: vara 2028

În apropiere se află: Bancă, Farmacie, Grădiniță, Piață, Școală, Supermarket, Teren de Joacă.

Compania CONNECT IMOBIL vă ajută în procesul de vînzare-cumpărare a unui imobil, teren sau spațiu comercial, beneficiind de consultanță juridică în domeniul imobiliar și accesarea unui credit ipotecar.TOATE OFERTELE DISPONIBILE LE GĂSIȚI AICI: https://connectimobil.md/

Расположение
logo maib